
«Vendiamo per ricostruire e migliorare il nostro patrimonio e le nostre progettualità – sottolinea il sindaco Fausto Tinti -. Dobbiamo dare alla città spazi adeguati in cui riprendere quota dal punto di vista socio-educativo e anche per favorire gli investimenti e la ripresa economica soprattutto in materia di lavori pubblici. Per questo motivo i proventi della vendita saranno re-investiti in primis nel recupero edilizio dell’Ex Asilo nido, degli spazi giovanili e delle scuole del Comune».
La vendita è stata deliberata dal Consiglio Comunale del 23 ottobre 2014 (del. n. 138).
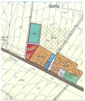
La proprietà di superficie complessiva pari a mq. 2540 (SU mq. 889) si trova nella parte est della frazione di Gallo Bolognese con accesso dalla via Emilia e confina con il campo sportivo.
Le offerte e la documentazione richiesta dovranno pervenire entro le ore 12,30 di lunedì 16 febbraio 2015 all’Ufficio Protocollo del Comune. L’asta, che sarà pubblica per mezzo di offerte segrete, si terrà il 17 febbraio alle ore 9,30 nella Residenza Comunale a partire da un importo complessivo a base d’asta di 365.500 euro più Iva.
Il bando e i moduli sono disponibili del sito del Comune www.cspietro.it e si possono richiedere allo Sportello Cittadino del Comune di Castel San Pietro Terme in piazza XX Settembre 3 aperto dal lunedì al sabato ore 8-13 e il giovedì anche 15-17,45 (tel. 051 6954154 – fax 051 6954141)
Per informazioni sulla presentazione delle domande: Servizio Segreteria Amministrativa dell’Area Tecnica – referente Danila Cimatti – tel. 051 6954120 – negli orari: lunedì 8,30-12,30 e giovedì 15-17,45.
Per chiarimenti tecnici: Ufficio Tecnico – referente arch. Fausto Zanetti – tel. 051 6954143 – negli orari: lunedì 8,30-12,30 e giovedì 15-17,45.
Altre storie
NCI -“Oltre 89 mila euro per rafforzare supporto, servizi domiciliari e sollievo per chi assiste familiari non autosufficienti”
Il Comune di Imola ha reso omaggio a Riccardo Bruno, campione italiano junior di para archery
Conselice, arrestato per una rapina da 10mila euro: deve scontare 5 anni e 6 mesi